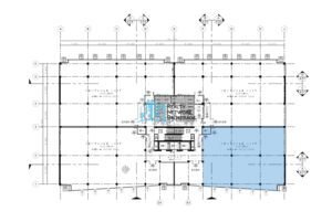
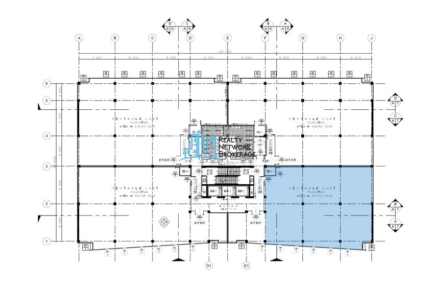
FLOOR PLAN D